Welcome to Lot #39 at
Northshore Resort on Buffalo Pound Lake!
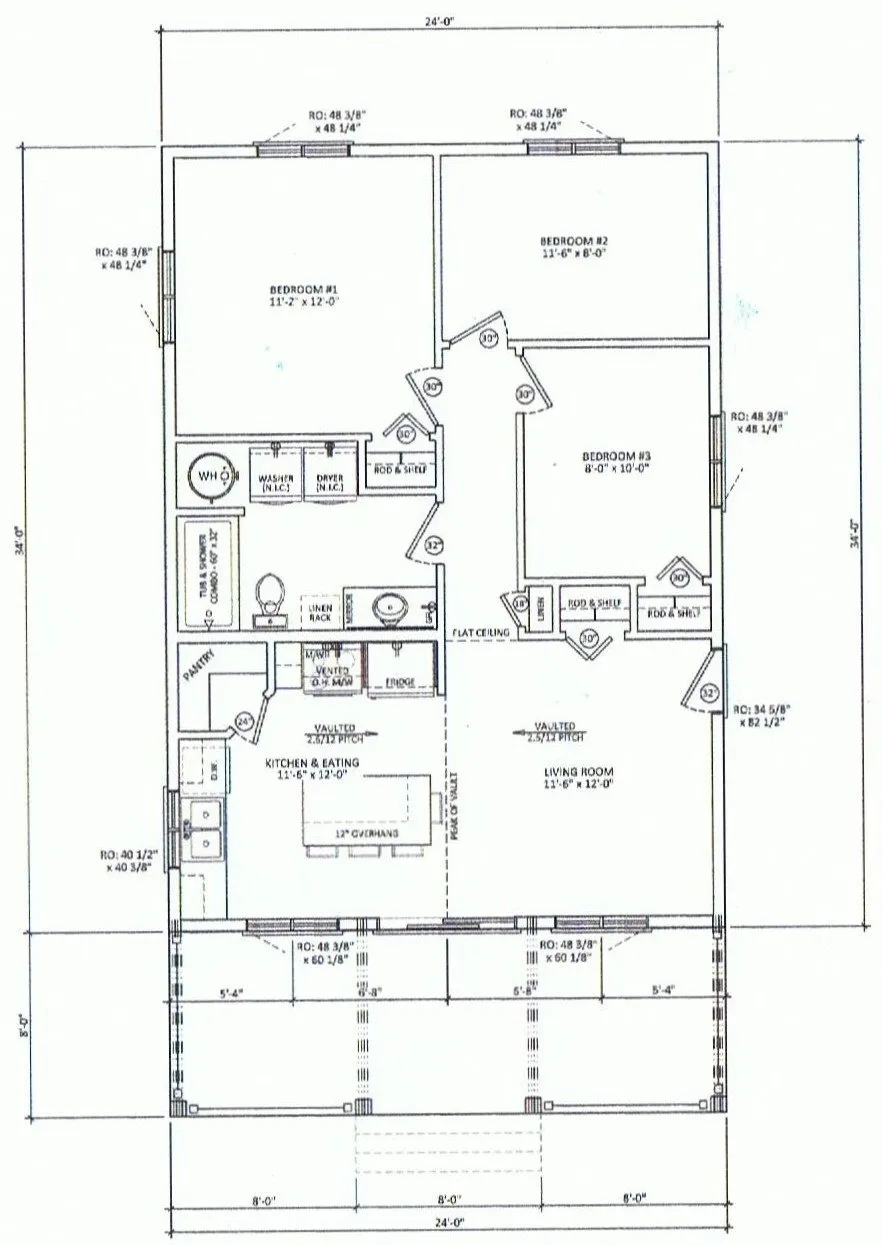
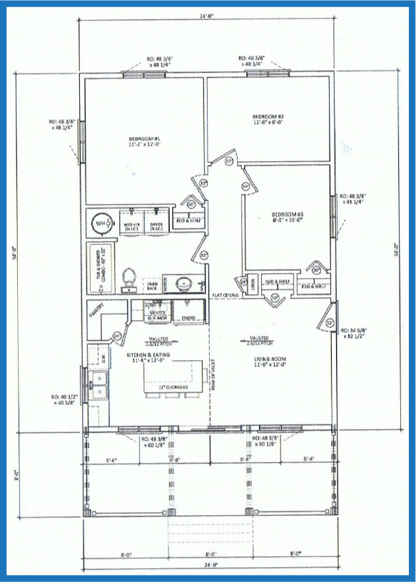
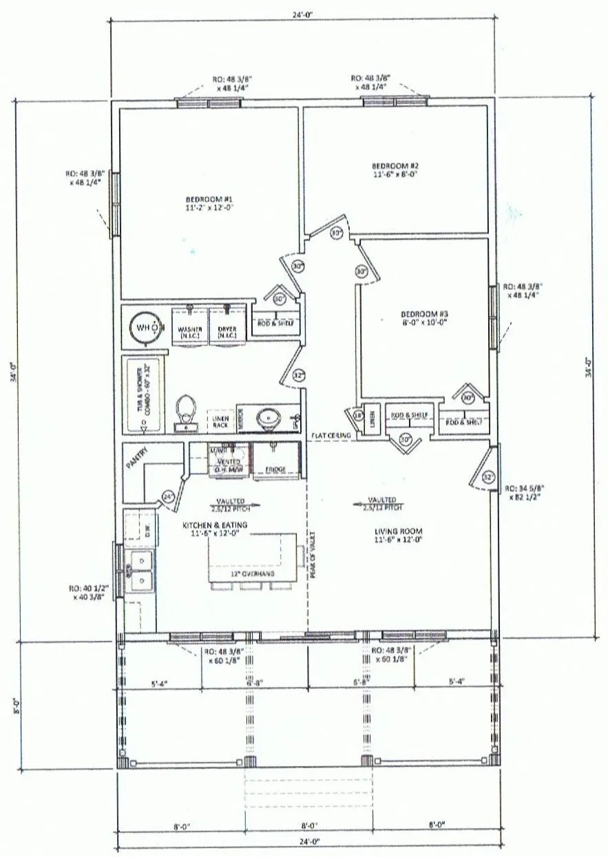
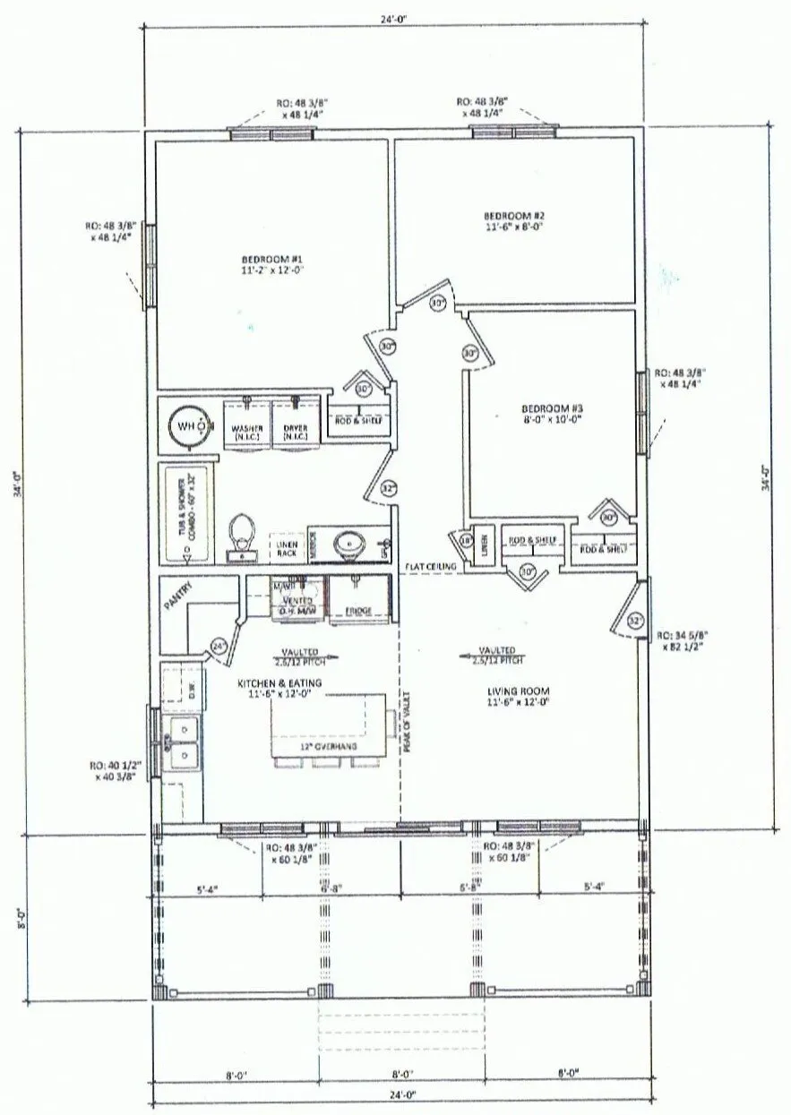
- 816 Square Feet
- 3 Bedrooms & 1 Bathrooms
- Beautiful Kitchen with soft close doors
- Titled Property
- Hardy board siding & metal roof
- 9 Foot Ceilings
- 4 foot Crawlspace
- Vaulted Ceilings
- 1250 Gallon septic tank, 950 Gallon Water Cistern
Lot #39 Specifications
SALE PRICE – $349,900
BASE STRUCTURE
- R28 Insulation
- 2×8 Walls
- R60 in Ceiling
- Drywalled interior walls
- Deck on front of cabin
- 9 foot ceilings
WINDOWS AND DOORS
- Triple Pane Windows and Doors
- Rear door with interior blind
- Decorative door insert 1/2 glass
EXTERIOR FINISH
- Hardy board siding with a metal roof.
- Aluminum Soffits and Fascia, Eaves toughing – Black
PLUMBING, HEATING & ELECTRICAL
- All ductwork, air returns and plumbing completed
- Kitchen sink, faucet
- Main bath with toilet, 1 PC tub, Sink and Faucets
- Washer plumbing and dryer outlet
- 200 Amp service panel
- CO2 and smoke detectors installed
INTERIOR FINISH
- Finish material installed
- Shelving and rods installed
- Painted Walls
- Mirrors
- Bathroom Accessories
INTERNET
- Available through Wood River Controls. They can be reached at (306) 992-5516
MISCELLANEOUS ITEMS
- Electric Water heater
- 60,000 BTU Propane Furnace
- HRV System
- 4′ ICF Crawl Space
- 875 Gallon water tank and 3/4 HP Tankless pressure system
- 1250 Gallon Sewer tank
RESORT INFORMATION
This location consists of 600 acres on the Northshore of Buffalo Pound Lake with approximately 20% of those lands used for lots and 80% used for common area use – maintaining our promise to create tremendous outdoor recreational facilities.
Outside of cleaning up deadfall and maintaining vegetation, the undeveloped valley side lands will remain virtually untouched providing wilderness for our site owners to enjoy!
Complete with our own private beach, boat launch, marina, shoreline, washroom buildings, pool (coming soon), horse shoe pits, bocce ball pits, community fire pit area & frisbee golf – you will have lot’s too do after you’ve enjoyed that bevvy on the deck!
Our resort is open year around.
AMENITIES
Simple & Powerful
Boat Launch
New for 2021, this double slip boat launch is the gateway to open water!
Marina
Owned marina slips for sale for $4,000 plus tax. Annual fees apply for install and removal.
Food on Location
Varying times throughout the season, we have a food truck come onto location.
Adventure Playground
From zip line to swing set to climbing structure – this playground has it all!
Frisbee Golf
9 holes of frisbee golf in Phase #3.
Beach
Sand, sand and more sand! This natural beach is a hotspot!
10+ KM of Walking Paths
And growing! Lots to explore on a daily basis!
Pump Bike Track
Perfect for the young kids to explore the tracks and get comfortable on those pedal bikes!
Berry Picking
Everywhere. TONS of berry picking for those Saskatoon Pie’s!
Bird Watching
Hundreds of different types of birds, deer and even a moose or two.
Washroom Building
A 2 unit washroom in Phase #2 and a washroom facility coming soon to Ph #3!
POOL
Coming for 2022
FREQUENTLY ASKED QUESTIONS
Got a question? We’re here to help.
How many acres is this resort?
If I purchase, do I own title?
What is your smallest site size?
What Amenities do you have?
- Dual loading boat launch
- Owned Marina (slips available for $4,000 + taxes, annual maintenance fees to install & remove slips)
- Sandy public beach capable of about 75 people
- Frisbee Golf
- Washroom Building
- Adventure Playground with Zip Line
- Internet
- Horseshoe’s
- Boccie Ball
- Community fire pit area
- Kids pump track for BMX bikes
- Kids entry level dirt bike track on top of the valley (1/2 mile long)
- 10+ km of walking paths
- Beach Volleyball Court
- Berry Picking
- Tremendous Birding & Stargazing
- Canada Day Celebrations & Fireworks show!
- Lot’s of events and exploring for the family!
- FOR RENT – Kayak, Paddle Board, Golf Cart, Pontoon boat, Fishing boats, Ski boat, Sea-doo’s
What amenities are yet to come?
- Swimming Pool
- PH #3 Washroom Building & Playground
- Non-potable water loading facility
- Event Stage
What are the Resort Services?
To set up your account, please call Sask Power at 1-888-757-6937 with your lot address (like – 17 Northshore Resort) and Sask Power Meter Number that is posted on the meter panel.
Water: Like all other developments on buffalo Pound Lake, we haul water into each site.
Sewer: Like all other developments on Buffalo Pound Lake, we haul our sewer to a disposal facility.
Olson & Son’s Services is contracted to provide water & sewer.
Olson’s can be reached at 306-630-4773
Gas: No natural gas available.
Telephone: We have 4G LTE coverage on our entire development.
Internet: Available through Wood River Controls
Dock: We have a blanket approval in place for the entire resort to install docks, but ZERO shoreline alternations are permitted WITHOUT a permit.
Are golf carts, ATV’s and Side by Sides allowed on the campground?
Golf Carts & Pedal Bikes are allowed on all resort paths.
ATV’s & UTV’s operated by drivers over 16 years of age or older are permitted on all condo corporation roads.
ATV’s & UTV’s are NOT allowed to be operated by anyone under the age of 16 on the roads.
Dirt Bikes & other motorized vehicles operated by anyone under 16 are ONLY allowed on specific identified paths & the track on top of the valley. NO PUBLIC ROADS.
Use of all ATV’s, UTV’s, Dirt Bikes only permitted between 9am and dusk.
Use of Golf Carts past dusk must have drivers OVER 16 years of age and be well lite with headlamps as to not cause any risk driving in the dark.
Is their laundry facilities and public washroom with showers?
Laundry is coming in the PH #3 washroom building.
Can we make site improvements?
Is their tax on top of the purchase price?
Are there condo fees?
For Lakeview RV Lots, the condo fees are $50 / month or $600 / year
For Lakefront Lots, the condo fees are $100 / month or $1,200 / year
Are there property taxes?
If your leasing, you do not pay property taxes.
Are dogs allowed?
Are there any trees?
What is the road like coming into the property? Is it maintained by the RM or privately?
The road into our resort is all gravel and maintained long-term by the RM of Dufferin 190.
Is there more than one exit and where is the nearest fire response coming from?
Is the water potable and is there full hook-up for RV’s?
Can we have other buildings on our lot?
All sheds to be 8×12 and must have natural earth colors (minimum quality if vinyl siding, no tin walls or fabric buildings).
All building on our bare land condominium unit regulations must also fall within the zoning and bylaws of the RM of Dufferin 190. Development & Building Permits must be submitted directly to the RM.
Where is your main office?
Lumsden, Saskatchewan
S0G 3C0





